找回密码
 立即注册
查看: 58116|回复: 287

[家装] 山东一女子把阳台改成了临窗卧室,竟意外成了梦中情家,太羡慕了

[复制链接]
发表于 2025-6-26 11:53:54 来自手机 | 显示全部楼层 |阅读模式
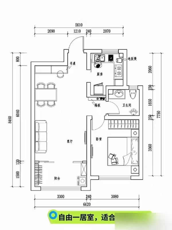
现在这房价看得人直嘬牙花子,普通家庭攒钱买个五六十平的小窝,孩子一长大就犯难。

山东这位女士的阳台改造,简直是小户型里的神仙操作!
1.jpg
玻璃推拉门配上厚实布帘,白天拉开客厅亮堂得能照见人影,晚上帘子一拉就成了孩子的秘密基地。

这种灵活隔断比砌死墙聪明太多了,既不挡光又保隐私,关键还省地儿。
2.jpg
最服气的是她家晾晒的巧思。

顶上的升降晾衣杆专晒被套大衣,躲开床铺不占地;窗边再支根横杆挂小件衣服,太阳直晒干得快还杀菌。
3.jpg
晚上把衣裳一收,空间立马还给卧室。

小户型最怕的"晾衣难"愣是被这双杆搭配化解了,垂直空间榨得那叫一个干净。
4.jpg
收纳更是绝招——床尾整面墙的顶天立地柜,连着洗衣区严丝合缝。

玩具杂物往里一塞,地面清清爽爽能溜冰。
5.jpg
洗衣机还留在原处,上下水走得规规矩矩,洗晾动线顺溜得像流水线。

榻榻米真是小空间的救星!
6.jpg
台阶底下藏着大抽屉,换季棉被羽绒服全塞进去。

护墙板包边防磕碰,孩子滚床单也安心。
7.jpg
插座预留得也到位,台灯手机充电触手可及。

最暖心的细节是推拉门开着的时候,孩子趴床上能瞄两眼客厅电视,这种小快乐比豪宅里的家庭影院更戳心窝子。
8.jpg
窗边摆两盆耐活的绿萝吊兰,不招虫还添生气,比网红装饰画实在多了。

不过这种改造真不是脑袋一热就能抄作业的。
9.jpg
承重问题得摆头一位,凹阳台嵌在楼体里才稳妥,那种凸出去的"悬空款"可经不起折腾。

施工前务必找专业团队测结构,该加固的梁柱别心疼钱。
10.jpg
保温隔热也得跟上,三层中空玻璃配加厚窗帘,不然夏天变蒸笼冬天成冰窖。

隐私更要讲究,遮光帘选密织布料,别让睡觉变成"现场直播"。
11.jpg
其实普通家庭折腾家居,精髓就在"螺蛳壳里做道场"。

推拉门既是隔断又能引光,榻榻米当床还能储物,一物多用才是真本事。
12.jpg
阳台早不该是杂物堆积场,稍微花点心思就能变身宝藏空间。

但千万记得先和物业通个气,该签的协议别偷懒。

安全合规是底线,别让聪明设计变成安全隐患。

说到底啊,家的温度真不在面积大小。

五十平的房子能住出滋润劲儿,全凭这份把日子过精细的巧思。

看着孩子在自己的小天地里读书玩耍,阳台外阳光正好的时候,突然就懂了什么叫"梦中情家"——不是金碧辉煌的摆设堆出来的,而是贴着生活本真需求长出来的智慧。

评分

参与人数 1金币 +10 收起 理由
admin + 10

查看全部评分

发表于 2025-6-26 16:14:51 | 显示全部楼层
我也喜欢在阳台待着
回复

使用道具 举报

发表于 2025-6-26 12:06:58 | 显示全部楼层
回复

使用道具 举报

发表于 2025-6-26 12:12:06 | 显示全部楼层
顶帖
回复

使用道具 举报

发表于 2025-6-26 12:13:08 | 显示全部楼层
顶帖
回复

使用道具 举报

发表于 2025-6-26 12:14:41 | 显示全部楼层
顶帖
回复

使用道具 举报

发表于 2025-6-26 12:25:20 | 显示全部楼层
回复

使用道具 举报

发表于 2025-6-26 12:35:22 | 显示全部楼层
顶帖
回复

使用道具 举报

发表于 2025-6-26 12:36:24 | 显示全部楼层
顶帖
回复

使用道具 举报

发表于 2025-6-26 12:43:01 | 显示全部楼层
回复

使用道具 举报

发表于 2025-6-26 12:55:49 | 显示全部楼层
回复

使用道具 举报

发表于 2025-6-26 12:57:15 | 显示全部楼层
顶帖
回复

使用道具 举报

发表于 2025-6-26 14:12:14 | 显示全部楼层
顶帖
回复

使用道具 举报

发表于 2025-6-26 14:27:33 | 显示全部楼层
顶帖
回复

使用道具 举报

发表于 2025-6-26 14:53:16 | 显示全部楼层
帮忙顶贴
回复

使用道具 举报

发表于 2025-6-26 15:06:52 | 显示全部楼层
顶帖
回复

使用道具 举报

发表于 2025-6-26 15:24:12 | 显示全部楼层
帮忙顶贴
回复

使用道具 举报

发表于 2025-6-26 15:34:35 | 显示全部楼层
顶楼主
回复

使用道具 举报

发表于 2025-6-26 15:40:25 | 显示全部楼层
回复

使用道具 举报

发表于 2025-6-26 15:50:44 | 显示全部楼层
回复

使用道具 举报

发表于 2025-6-26 15:56:42 | 显示全部楼层
顶帖
回复

使用道具 举报

您需要登录后才可以回帖 登录 | 立即注册

本版积分规则

快速回复 返回顶部 返回列表